ГлавнаяКаталог Офис — Красноармейская ул., 10

Красноармейская ул., 10, 196.20 м 2

255 060 ₽
Площадь: 196.20м 2 Этаж 8 из 22
1 300 ₽/м 2
Патрушева Наталья
Патрушева Наталья
Специалист
или оставьте ваш номер,
и я перезвоню в течение 5 минут
Нажимая на кнопку, вы даете своё согласие на обработку персональных данных и соглашаетесь с политикой конфиденциальности
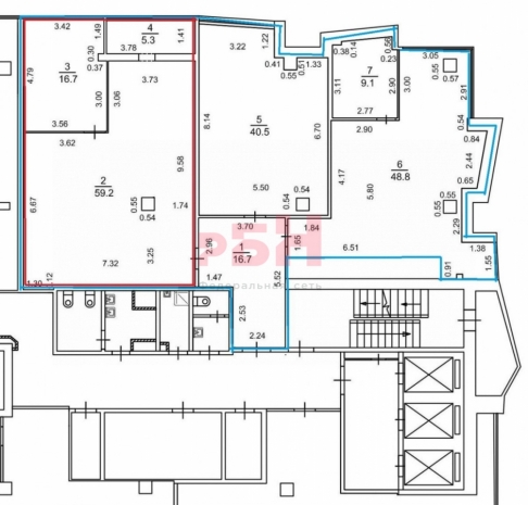
ПОМЕЩЕНИЕ общей площадью 196,2 кв.м. в блоке из трех помещений в центре города

Без комиссии для арендаторов.

- Бизнес-центр «Антей» находится в центре города на кольце улиц Белинского-Малышева-К.Либкнехта. Год постройки: 2004;
- Хорошая транспортная доступность, рядом остановки общественного транспорта, ближайшая станция метро «Площадь 1905 года»;
- В здании есть кофейня, гостиница, копировальный центр, юридические и туристические компании, банки;
- 8 этаж / общее количество этажей 22
- Площадь помещения: 196,3 кв.м. (3 кабинета 81,2 м2, 57,9 м2, 40,5 м2 + зона ресепшн 16,7м2);
- Отделка: полы - коммерческий линолеум, стены - обои под покраску, потолки подвесные Армстронг, сделан свежий ремонт;
- Высота потолков 2,7 метра;
- Планировка: смешанная;
- Автономная система отопления, вентиляции и кондиционирования;
- Пожарная сигнализация;
- Радиооповещение по всему зданию;
- 2 скоростных лифта;
- Специализированная телекоммуникационная компания предоставляет услуги высококачественной цифровой и аналоговой связи;
- Круглосуточная охрана, система контроля доступа в здание и на каждый этаж;
- Наземная парковка около БЦ, многоуровневая платная парковка

Стоимость аренды 255 060 руб./месяц (1300 руб/кв.м)

Более подробную информацию уточняйте у наших специалистов.
------------------------------------------------------
"Регион Бизнес Недвижимость".
Коммерческая недвижимость .
Без комиссии для арендаторов.
Арт. 19351512
Расположение

Красноармейская ул., 10

Похожие объекты

Посмотреть другие объявления в этой категории